Skip to main content

7 Arun House

Village: Elmbridge Village, Surrey
Property type
Apartment
Bedrooms
x1
Bathrooms
x1

Description

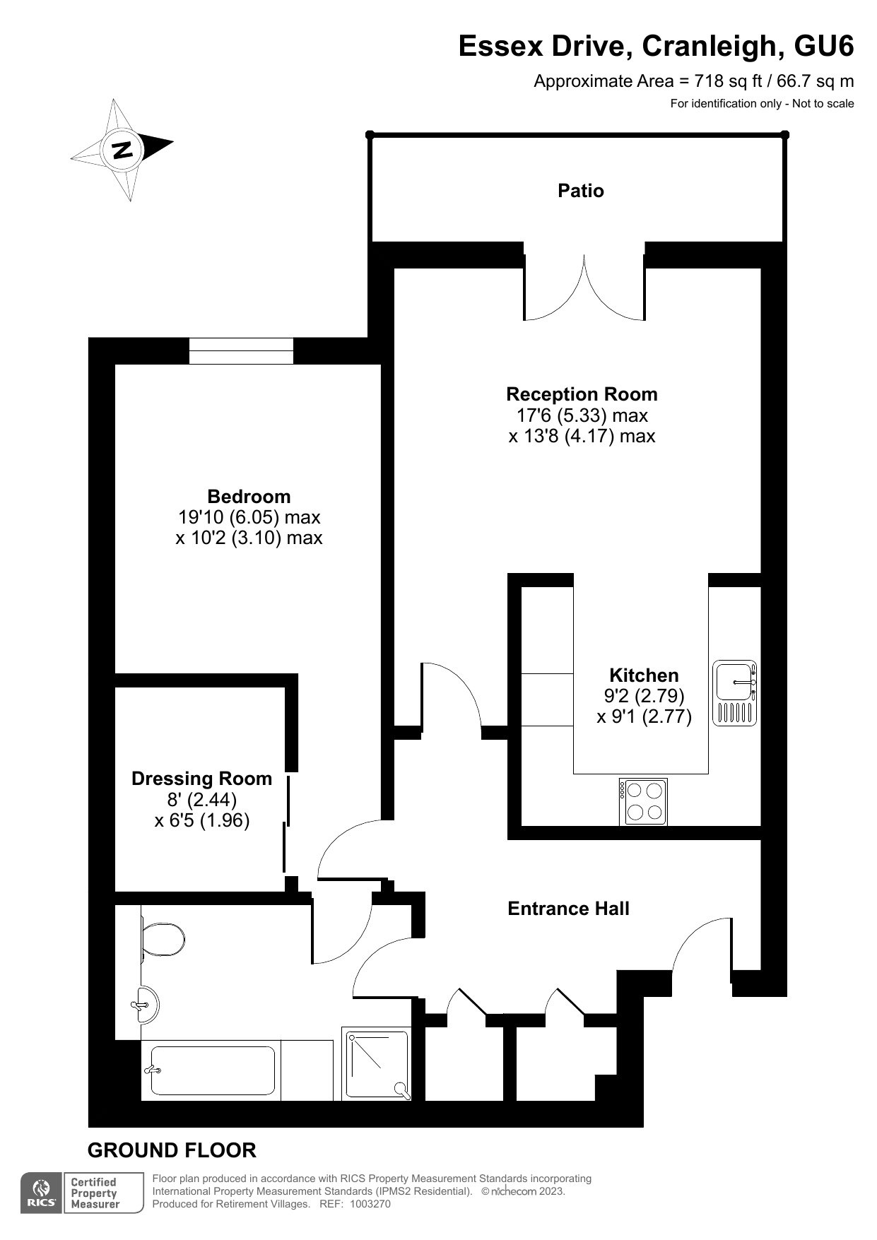
Ideally located opposite Elmbridge Manor and with views to the croquet lawn.  The  front door opens to a spacious hallway with 2 storage cupboards and access to the rest of the apartment.  Open plan sitting room/kitchen with double glazed doors leading to a small terrace.   Modernised fully fitted kitchen featuring integrated appliances including aNeff eye level single oven and hob, Zanussi dishwasher, washer dryer and fridge freezer.   All the units are slightly lower and deeper to maximise accessibility and storage space.      A spacious double bedroom with a large walk-in wardrobe and en suite bathroom with   bath, separate shower WC and wash hand basin. The bathroom can also be accessed via the hallway

Floor plan

Elmbridge Village

Address

Elmbridge Village
Essex Road
Cranleigh
Surrey
GU6 8TR

General

01483 672 629

Reception

01483 271 477

Living in Elmbridge Village

Elmbridge Village is situated on the leafy fringes of Cranleigh, one of Britain’s largest villages. This Surrey retirement village is the oldest in the Retirement Villages offering. We also believe it to be the UK’s first privately-owned retirement community. Do not let its age deceive you though. Elmbridge is a thriving retirement community. Active independence is at the core of everything that happens here with quite literally scores of leisure activities, hobbies and social clubs taking place across the seasons.

Tenancy Information

Furnish type: Not furnished
Size: 718.00 sq ft

Financial Information

Please download the documents below to see the financial details for this property.

Monthly inclusive charge

£3,250  / month

Monthly charge includes

Rent: £2,260.00
Service charge: £990.00

Book a viewing
Back to top