Skip to main content

20 Day Court

Village: Elmbridge Village, Surrey
Property type
Apartment
Bedrooms
x2
Bathrooms
x1

Description

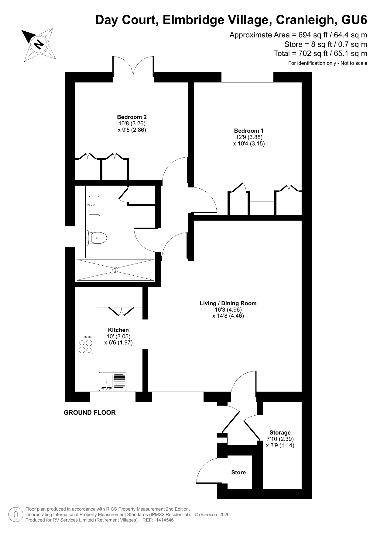
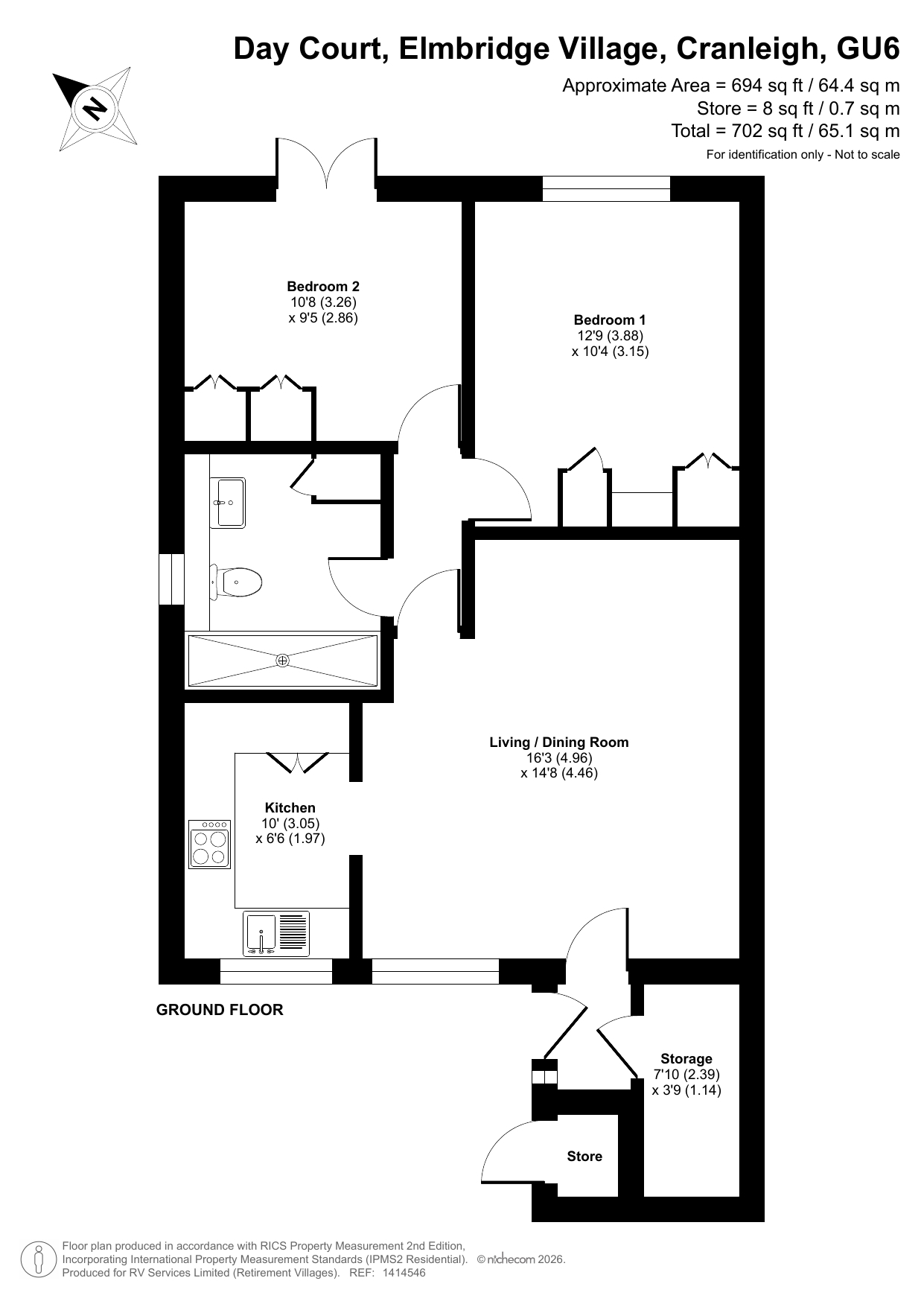
This well-presented home offers comfortable, contemporary living with easy access to all the village amenities.   With its convenient ground floor position and proximity to everything Elmbridge Village has to offer, 20 Day Court is ideal for those seeking an easy, low-maintenance lifestyle within a vibrant retirement community.   The accommodation comprises a spacious living/dining room with an opening through to the fully fitted kitchen, which includes an integrated Lamona fridge-freezer, dishwasher, Hotpoint washer dryer, NEFF eye-level oven and electric hob. The main bedroom benefits from fitted wardrobes, while the second bedroom features French doors leading directly to the garden. There is also a shower room with level-access walk-in shower, WC and wash hand basin, along with a useful utility cupboard housing the washer-dryer. Elmbridge is a well-established village with 276 homes, including bungalows and apartments, set within in 27 acres of landscaped grounds. Located near the charming Cranleigh village, Elmbridge offers residents a range of amenities such as a restaurant, a lively bar, village hall, hair salon, croquet lawn, on-site store, library, and regular doctor's surgeries. Those with green fingers can enjoy our lively allotments, and there's a beautiful walking meadow and daily bus service for a well-rounded lifestyle.

Elmbridge Village

Address

Elmbridge Village
Essex Road
Cranleigh
Surrey
GU6 8TR

General

01483 672 629

Reception

01483 271 477

Living in Elmbridge Village

Elmbridge Village is situated on the leafy fringes of Cranleigh, one of Britain’s largest villages. This Surrey retirement village is the oldest in the Retirement Villages offering. We also believe it to be the UK’s first privately-owned retirement community. Do not let its age deceive you though. Elmbridge is a thriving retirement community. Active independence is at the core of everything that happens here with quite literally scores of leisure activities, hobbies and social clubs taking place across the seasons.

Tenancy Information

Furnish type: Not furnished
Size: 633.00 sq ft

Financial Information

Please download the documents below to see the financial details for this property.

Monthly inclusive charge

£3,500  / month

Monthly charge includes

Rent: £2,603.08
Service charge: £897.00

Book a viewing
Back to top