Skip to main content

28 Deanery Walk

Village: Avonpark, Wiltshire
Property type
Apartment
Bedrooms
x2
Bathrooms
x2

Description

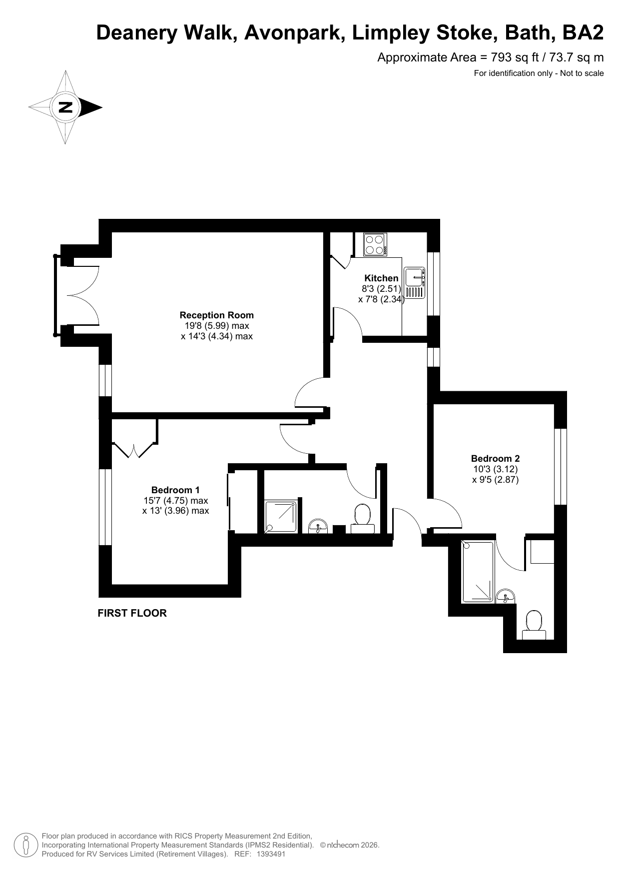
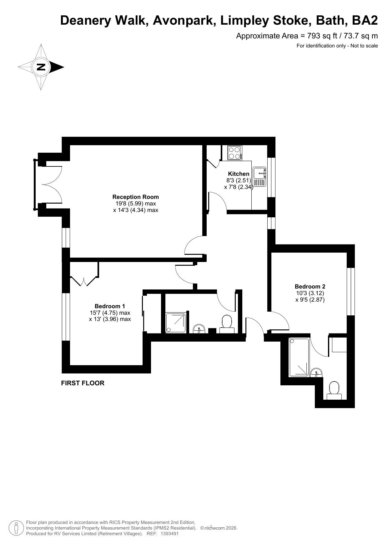
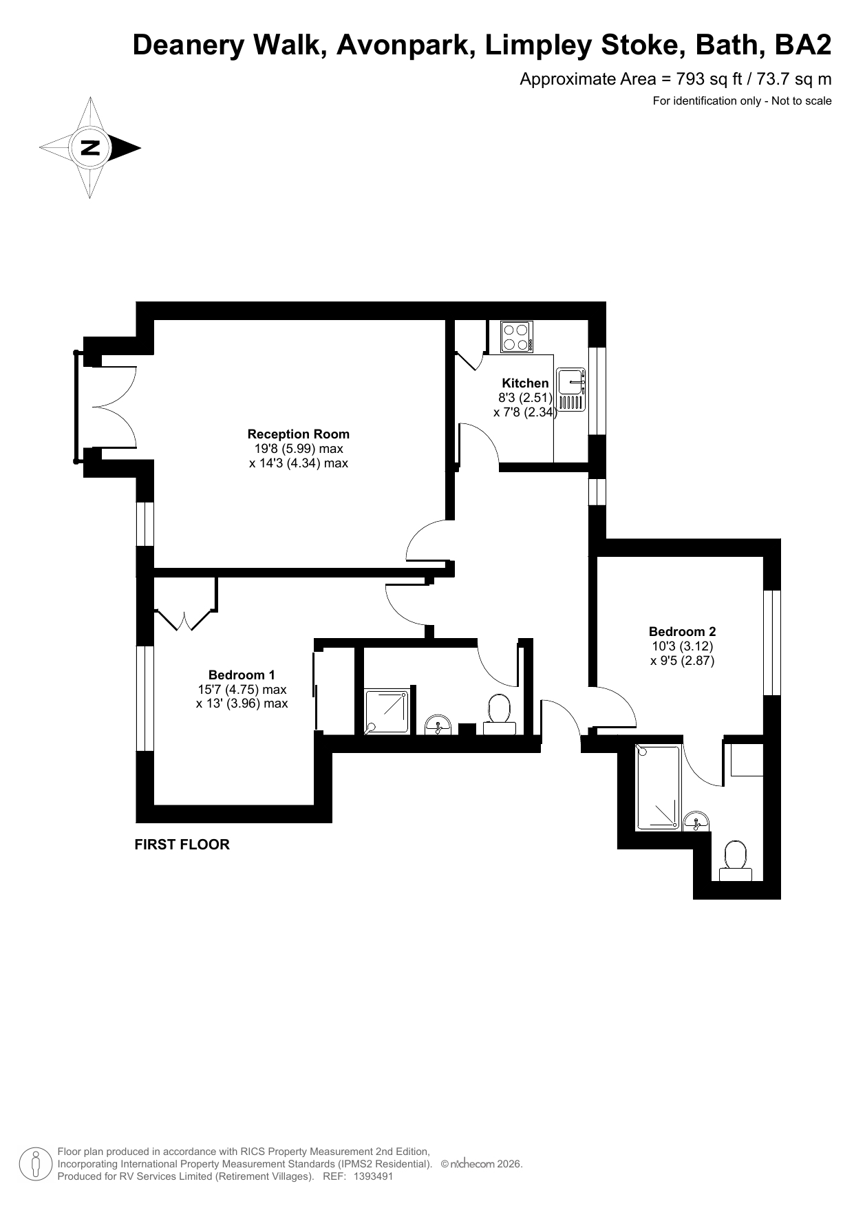
A beautifully presented two-bedroom first-floor apartment with lift access, boasting stunning valley views, generous living space, a Juliet balcony, and two easily accessible bathrooms, including an en-suite. The kitchen is very well equipped with a range of integrated appliances, including an AEG Oven and Grill, Tekka Halogen Hob and an AEG Fridge Freezer. Avonpark Village offers a superb range of social and leisure facilities, along with support services tailored to your individual needs—both now and in the future. Avonpark is a highly sought-after retirement village set within approximately 15 acres of mature, secluded grounds, enjoying delightful rural views over the Avon Valley and beyond. The extensive communal gardens feature an array of mature trees, shrubs, plants, and seating areas for residents. These are complemented by a restaurant, bar, bistro, and coffee lounge, as well as a full calendar of resident-led activities and trips.

Avonpark Village

Address

Avonpark Village
Winsley Hill
Limpley Stoke
Wiltshire
BA2 7FF

General

01225 255 228

Reception

01225 722 888

Living in Avonpark Village

Avonpark Village overlooks the stunning Avon Valley and is conveniently located just six miles from Bath and 18 miles from Bristol. Avonpark is an established community in every sense. Aside from offering a range of social events throughout the seasons, there are manicured lawns and wooded grounds to enjoy, as well as excellent communal facilities. The 15 acre village is very popular with walkers, who enjoy strolling the picturesque fields whilst taking in views of the hills and the Avon Valley.

Property Information

Furnish type: Unfurnished
Size: 775.00 sq ft

Financial Information

Service charge: £9,744.81 PA for single or double occupancy

Assignment fee: Owners of a Retirement Villages Lease are required to pay an assignment fee on re-sale of the property which is a percentage of up to 12.5% of the re-sale price of the property when it is re-sold.

Please download the documents below to see the financial details for this property.

Back to top