Skip to main content

25 Farmery Court

Village: Castle Village, Hertfordshire
Property type
Apartment
Bedrooms
x2
Bathrooms
x2

Description

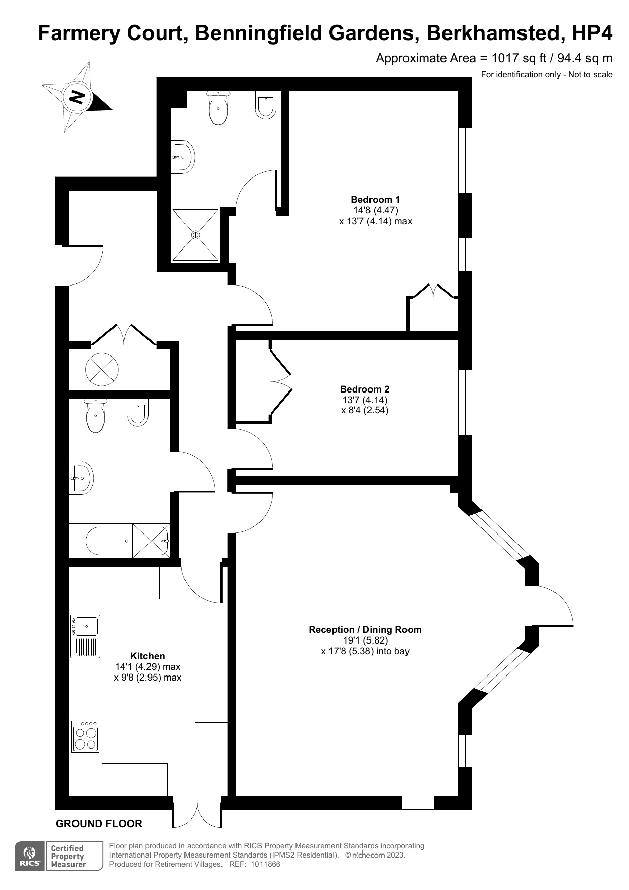
A very spacious two double bedroom ground floor apartment (1017 sq ft), with a kitchen breakfast room and direct access to two patios, with attractive communal gardens beyond, set within the prestigious Castle Village retirement development GENERAL INFORMATION:- Purchasers must be 55 years of age or over to become a resident at Castle Village and acceptance is subject to an interview with the village manager. It should be noted that the service charge includes, full onsite estate management, maintenance to the exterior of the buildings, grounds and Mansion House, buildings insurance, heating and lighting within the communal areas and external decoration and window cleaning. In addition, there is one hours domestic cleaning per week, which includes a weekly collection of all bed linen, which is cleaned ironed and returned to the property. For added peace of mind all properties have an emergency call and monitoring system, supported by 24 hour on site health leads and a GP surgery onsite once a week for consultations and prescriptions. Retirement Villages Group are the managing agents and Freeholders for Castle Village.

Floor plan

Castle Village

Address

Castle Village
Britwell Drive
Berkhamsted
Hertfordshire
HP4 2GS

General

01923 913 864

Reception

01442 877 335

Living in Castle Village

Castle Retirement Village offers independent living options nestled within 28 acres of manicured grounds. It boasts idyllic scenery and an award-winning Japanese garden centred around a carp lake and summerhouse pavilion. At the heart of Castle Village in Berkhamsted, Hertfordshire sits Mansion House. The impressive Grade II listed building is rightly established as the centre point of this retirement village and houses extensive country club style facilities including a wood panelled restaurant, meeting room, library, snooker room, bar and conservatory.

Property Information

Furnish type: Unfurnished
Size: 1039.00 sq ft

Financial Information

Management fee: £8,884.81 PA for single and double occupancy.

Assignment fee: Owners of a Retirement Villages Lease are required to pay an assignment fee on re-sale of the property which is a percentage of up to 20% of the re-sale price of the property when it is re-sold. Please ask the Village Manager for more details and a copy of the financial implications.

Please download the documents below to see the financial details for this property.

Back to top