Skip to main content

22 Badgers Walk

Village: Cedars Village, Hertfordshire
Property type
Bungalow
Bedrooms
x2
Bathrooms
x2

Description

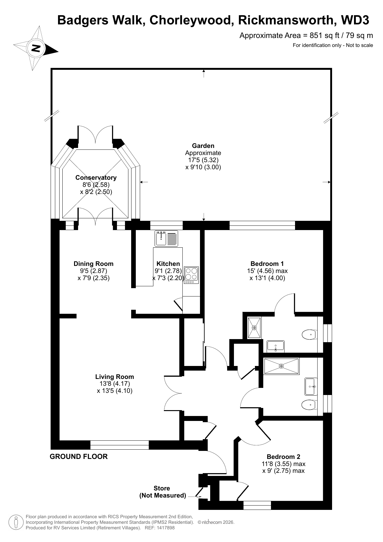
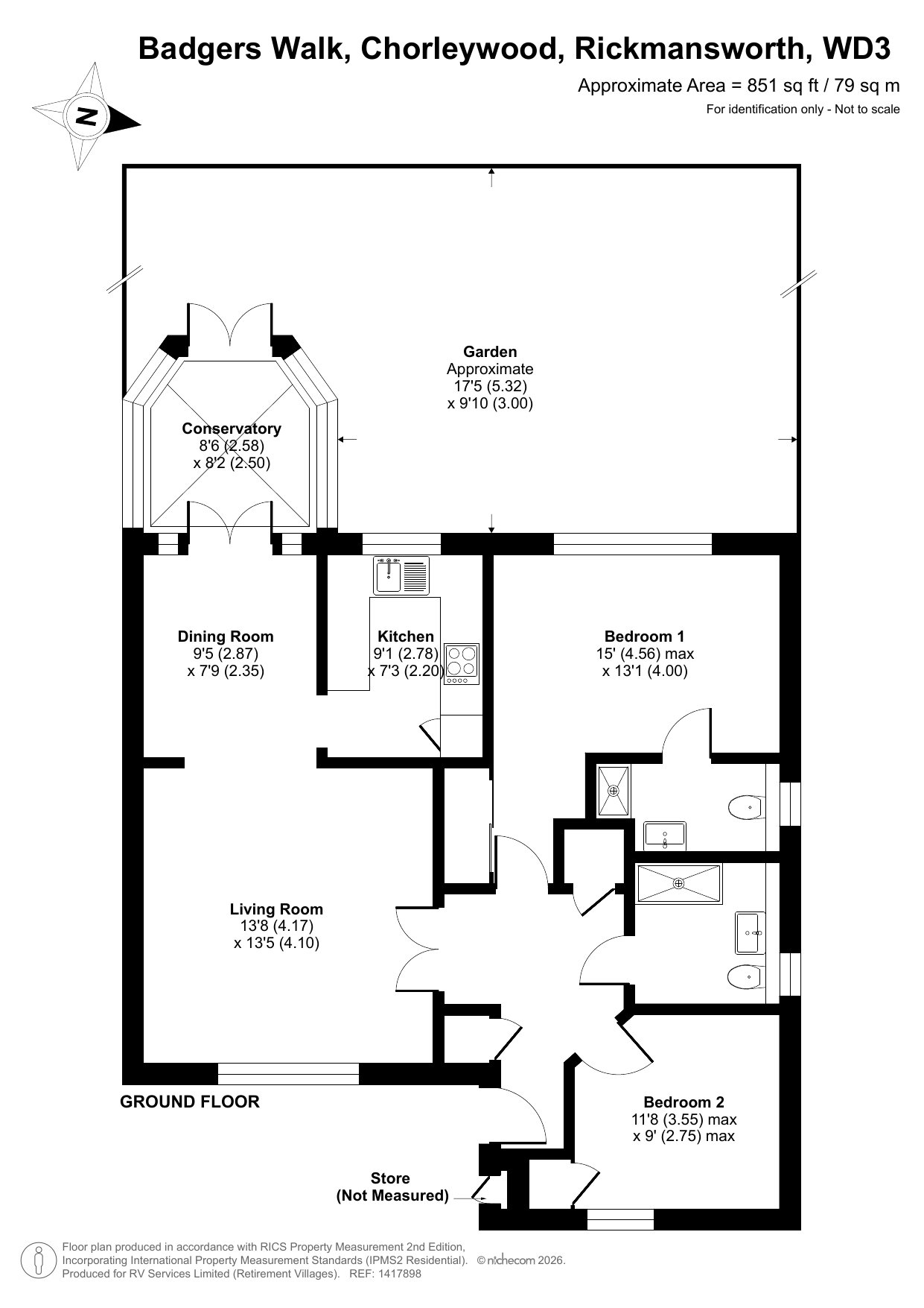
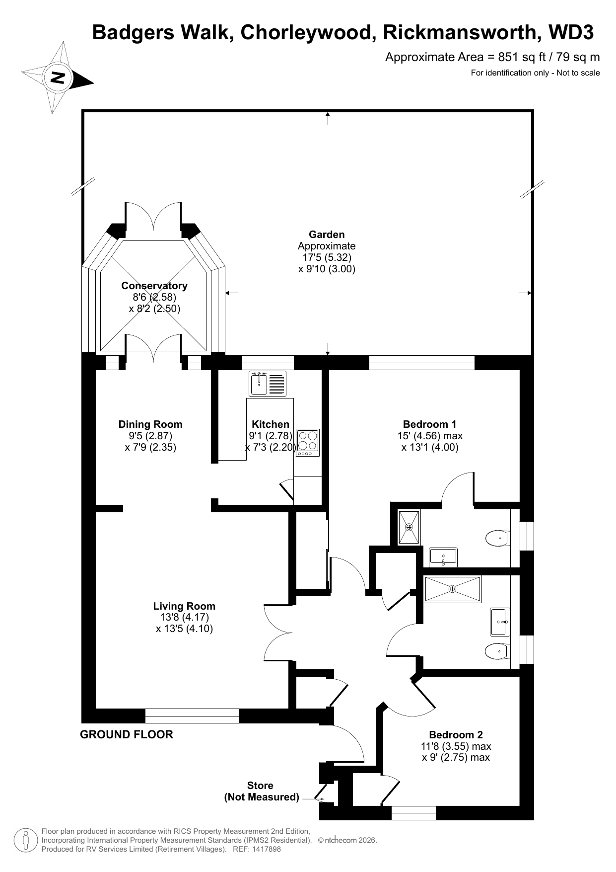
The exterior features a bin store cupboard housing meters, with established plants and shrubs to the front. A private front door leads into the entrance hall, which includes a coat cupboard, airing cupboard, loft hatch, and wall-mounted call monitor system connected to 24-hour emergency assistance. Double doors open into the sitting room with a large front-aspect window overlooking the communal gardens, TV/FM and telephone points, and ceiling coving, leading through an archway to the dining room. The dining room has double French doors to the conservatory and access to the kitchen, which is fitted with white gloss wall and base units, roll-top work surfaces with a stainless-steel sink, four-ring ceramic hob, washing machine, wall-mounted boiler, and a rear-aspect window overlooking the communal grounds. The master bedroom enjoys a rear-aspect view of the grounds, with a built-in double wardrobe and en-suite shower room comprising an enclosed shower cubicle, WC, and vanity sink unit. Bedroom two has a front-aspect window and built-in cupboard. The bathroom includes a seated bath, WC, pedestal wash hand basin, and frosted window. The conservatory features a tiled floor and double doors opening onto a patio area within the communal gardens.

Cedars Village

Address

Cedars Village
Finch Green
Chorleywood
Hertfordshire
WD3 5GL

General

01923 913 871

Reception

01923 444 665

Living in Cedars Village

Cedars Village is situated in Chorleywood, Hertfordshire and is the perfect place to settle to enjoy life after 60. Upon arrival at Cedars Village you are greeted by a sweeping driveway leading to Cedars Mansion House, an incredible Grade 11 listed building, sat within a picturesque landscape. Adjoining the building is possibly the most iconic feature of Cedars Village - its two-storey glass conservatory, which holds decades of history. The dramatic black and white tiles that pave the floor of the conservatory are an indication of its Victorian heritage. In its day, it was used as a hot house - a home for tropical plants and animals. Whilst the plants and animals have gone, the stunning structure remains and having undergone a complete overhaul in 2010, is now very much at the centre of village life. Cedars Mansion House is the hub of the village and features an elegant restaurant, ballroom, library, hobbies room, medical centre, snooker room and bar.

Property Information

Furnish type: Unfurnished
Size: 851.00 sq ft

Financial Information

Management fee: £9,008.48 pa for single or double occupancy.

Assignment fee: Owners of a Retirement Villages Lease are required to pay an assignment fee on re-sale of the property which is a percentage of up to 20% of the re-sale price of the property when it is re-sold. Please ask the Village Manager for more details and a copy of the financial implications.

Please download the documents below to see the financial details for this property.

Back to top