Skip to main content

17 The Priory

Village: The Priory, Devon
Property type
Apartment
Bedrooms
x2
Bathrooms
x2

Description

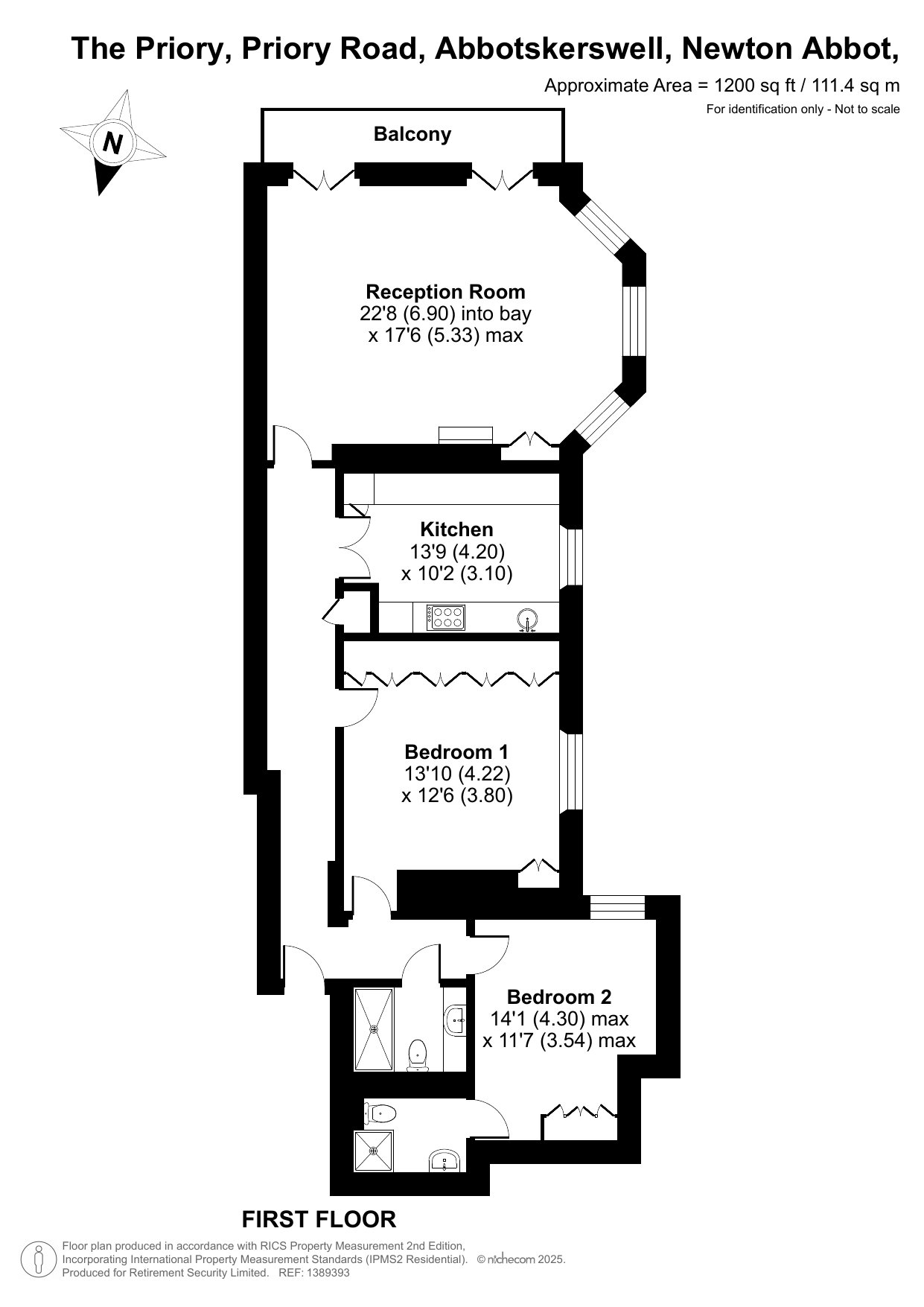
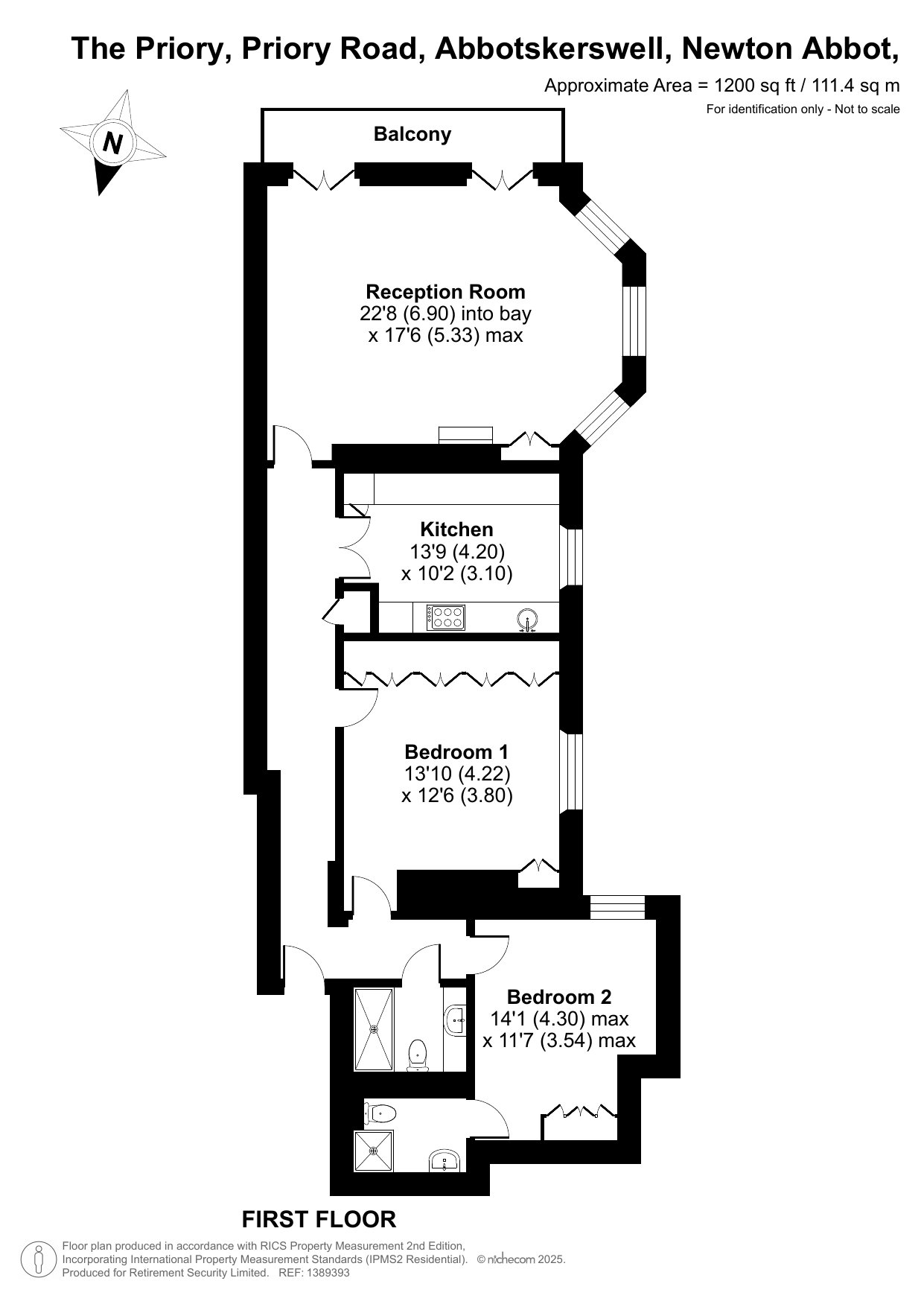
A well-presented two-bedroom, dual-aspect, first-floor apartment featuring many original features. The property comprises an entrance hall with additional storage extending the length of the apartment. The kitchen features a 50/50 integrated fridge freezer and extractor hood by Lamona, alongside a Neff integrated hob, single microwave oven, and single oven. It also includes a Lamona integrated dishwasher and washer/dryer, as well as a free-standing wine rack by Lamona. The master bedroom benefits from a modern, separate shower room and a stunning window seat overlooking the beautiful Devon countryside. A good-sized second bedroom is complemented by large built-in wardrobes and an en-suite shower room. The light and airy, large dual-aspect lounge/diner features two sets of patio doors leading directly onto a spacious south-facing balcony, boasting glorious far-reaching views. Located close to the picturesque and historically rich village of Abbotskerswell, The Priory offers a fantastic base from which to explore all that South Devon has to offer.

The Priory

Address

The Priory
Priory Road
Abbotskerswell
Devon
TQ12 5PP

General

01626 912 684

Reception

01626 360 069

Living in The Priory

Nestled within the beautiful South Devon countryside, Recently undergone an extensive refurbishment program, The Priory retirement village sits in five acres of land overlooking the picturesque hamlet of Abbotskerswell. It provides independent living for the over 60s in a mix of cottages and apartments. The village is centred around a former Priory - built in the mid 19th century. Properties ooze character and charm, with some in the main building featuring stained glass windows, arched columns and sash windows.

Property Information

Furnish type: Unfurnished
Size: 111.00 sq ft

Financial Information

Service charge: £10422.98 pa for single or double occupancy. Water and Sewerage costs are included in the service charge.

Assignment fee: Owners of a Retirement Villages Lease are required to pay an assignment fee on re-sale of the property which is a percentage of up to 12.5% of the sale price when the property is resold. Please ask the Village Manager for more details and a copy of the financial implications.

Please download the documents below to see the financial details for this property.

Back to top