Skip to main content

17 Compton Court

Village: Lime Tree Village, Warwickshire
Property type
Bungalow
Bedrooms
x2
Bathrooms
x2

Description

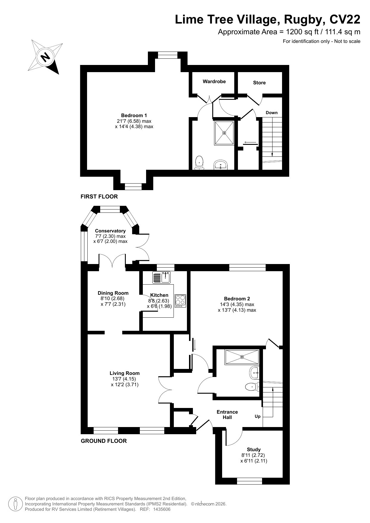
Tucked away in the south-eastern corner of the village, this beautifully modernised two-bedroom, two-bathroom dormer bungalow enjoys a sunny conservatory with lovely woodland views. Upon entering, you are welcomed by a hallway with a convenient study space to the right of the front door. Opposite, there is a stylish wet room and a versatile room that can serve as either a spacious lounge or ground-floor bedroom, complete with under-stairs storage and a double built-in wardrobe. Continuing through the hallway, glazed doors lead into a bright and airy lounge/diner, which flows seamlessly into the conservatory—an ideal spot to relax and enjoy the surrounding greenery. The kitchen is conveniently located just off the dining area and includes Whirlpool dishwasher, and hob, NEFF oven, John Lewis washer/dryer and Bosch fridge/freezer and extraction hood. Upstairs, the property offers excellent additional storage, including a large storage cupboard and an airing cupboard housing the gas central heating water tank. The generous master bedroom features a built-in wardrobe, a private shower room, and dual-aspect windows that flood the space with natural light. All of this is just a short two-minute walk from the main clubhouse at Lime Tree Village, where a range of social activities and community spaces are available to enjoy as part of everyday life.

Floor plan

Lime Tree Village

Address

Lime Tree Village
Cawston House
Rugby
Warwickshire
CV22 7SA

General

01788 211 799

Reception

01788 522 255

Living in Lime Tree Village

Welcome to Lime Tree Village, a thriving community set on the outskirts of Rugby. Enjoy the fresh air in our extensive landscaped grounds, wildlife areas, allotments and games lawns or enjoy some R&R in our clubhouse, snooker room or library. With so many fantastic facilities, you can choose to spend your time staying as busy or relaxed as you wish. Everything at Lime Tree Village is centred around our fantastic community. With a lively social calendar, there is always plenty to do to help you enjoy your retirement years to the fullest. Alongside that, we make sure we cover all the practical points too. Our team look after the grounds and the communal areas and the fantastic health centre is staffed 24 hours a day so you can enjoy peace of mind about the future. But the rest is up to you. Relax, enjoy and really thrive in your retirement years

Property Information

Furnish type: Unfurnished
Size: 1200.00 sq ft

Financial Information

Service charge: Single Occupancy £7,390.00pa, an additional £300 pa for double occupancy.

Assignment fee: Owners of a Retirement Villages Lease are required to pay an assignment fee on re-sale of the property which is a percentage of up to 15% of the re-sale price of the property when it is re-sold. Please ask the Village Manager for more details and a copy of the financial implications.

Please download the documents below to see the financial details for this property.

Back to top