Skip to main content

3 Theydon Court

Village: Elmbridge Village, Surrey
Property type
Bungalow
Bedrooms
x2
Bathrooms
x2

Description

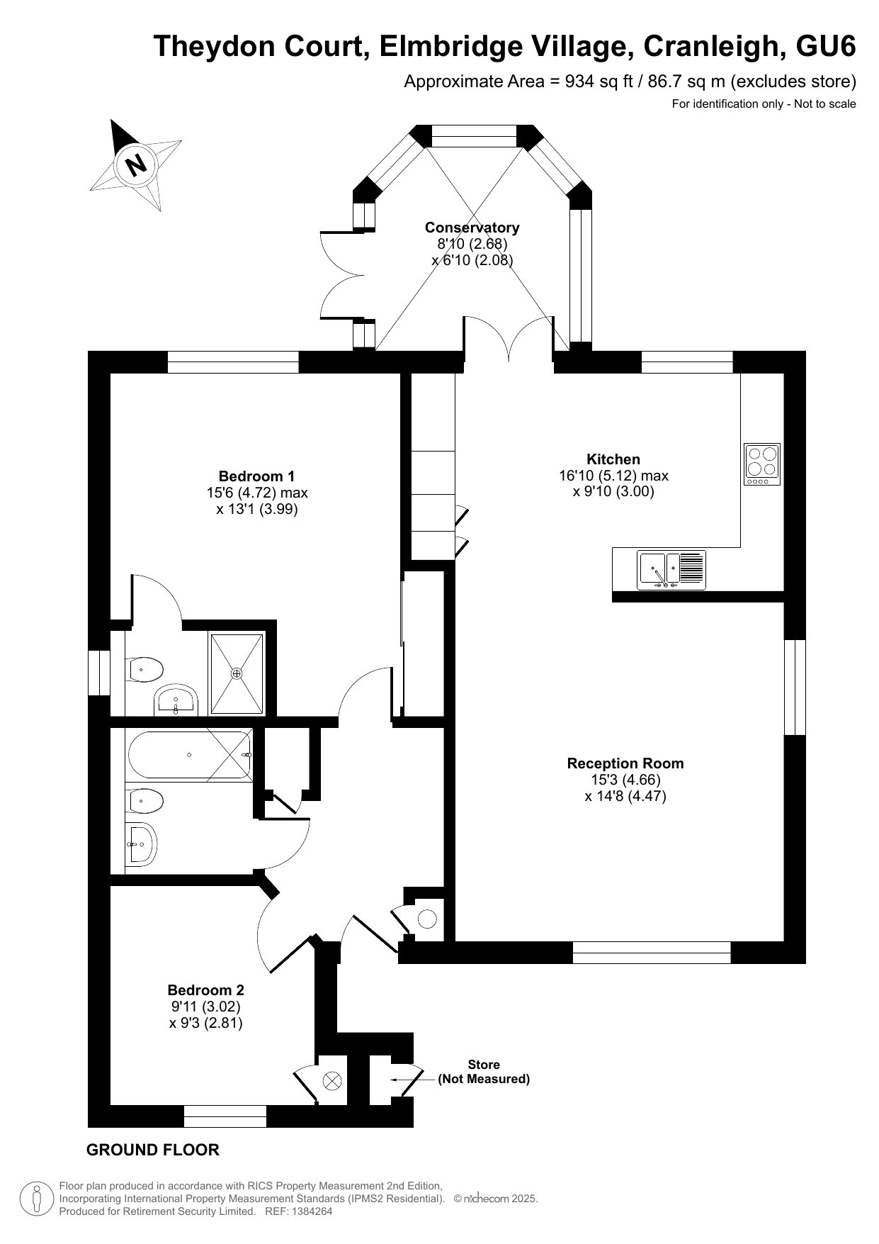
One of only two of this type of detached bungalow in Elmbridge, this charming home enjoys picturesque views across the allotments. The welcoming hallway leads into a spacious living room, thoughtfully designed for comfort and ease of living, with garden views over Theydon Court. The modern kitchen/breakfast room offers ample space for a dining table and features integrated appliances including a dishwasher and fridge freezer, plus dedicated space for a washing machine and tumble dryer. From here, enjoy views over the allotments with a door to the conservatory and patio. The master bedroom benefits from fitted wardrobes and an en suite shower room, while a second bedroom provides flexibility for guests or a home office. A well-appointed bathroom includes a bath, WC, and wash basin. Completing the property is a separate garage, adding convenience and storage. Elmbridge is a well-established village with 276 homes, including bungalows and apartments, set within in 27 acres of landscaped grounds. Located near the charming Cranleigh village, Elmbridge offers residents a range of amenities such as a restaurant, a lively bar, village hall, hair salon, croquet lawn, on-site store, library, and regular doctor's surgeries. Those with green fingers can enjoy our lively allotments, and there's a beautiful walking meadow and daily bus service for a well-rounded lifestyle.

Floor plan

Elmbridge Village

Address

Elmbridge Village
Essex Road
Cranleigh
Surrey
GU6 8TR

General

01483 672 629

Reception

01483 271 477

Living in Elmbridge Village

Elmbridge Village is situated on the leafy fringes of Cranleigh, one of Britain’s largest villages. This Surrey retirement village is the oldest in the Retirement Villages offering. We also believe it to be the UK’s first privately-owned retirement community. Do not let its age deceive you though. Elmbridge is a thriving retirement community. Active independence is at the core of everything that happens here with quite literally scores of leisure activities, hobbies and social clubs taking place across the seasons.

Property Information

Furnish type: Unfurnished
Size: 934 sq ft

Financial Information

Service charge: £8,361.58 PA for single or double occupancy

Please download the documents below to see the financial details for this property.

Back to top Back to top

1 of 5

Close

Find your perfect community

Are you looking for yourself or a loved one?

Find your perfect community

See all locations

Find your perfect community

What type of property are you looking for?

Find your perfect community

Are you considering renting or buying?

Find your perfect community

I am looking for...